设计作品

维兰德金属(新加坡)总部

维兰德金属(新加坡)总部

维兰德集团是世界领先的铜及铜合金半成品及特殊产品的独立制造商,如铜带,铜板,铜棒,铜线,铜部件,滑动轴承,翅片管和热交换器。维兰德于1820年在德国乌尔姆成立,已经成为在世界各个主要市场参与者的跨国公司。维兰德通过在欧洲,亚洲,南非和美国的生产基地,裁切中心,贸易公司,提供着高质量的产品和优质的服务。维兰德金属(新加坡)总部是德国维兰德集团的全资子公司。它始建于1989年,为了占领及扩大亚洲市场,从创建伊始的小型卷材切割中心和代表处发展成为有声望的服务中心和维兰德集团的亚洲总部。维兰德决定建造一个不同于一般的办公室和工厂的用户体验,量身定制的设计,凸显公司独特之处的企业文化和生产流程的亚洲总部。

原始结构的视觉冲击,打破了传统超越功利主义的角色。

AVID研发中心的设计理念:

– 突破办公空间的压抑感;

– 抹掉传统装饰的虚假掩盖;

– 显现内部建筑的结构体系。

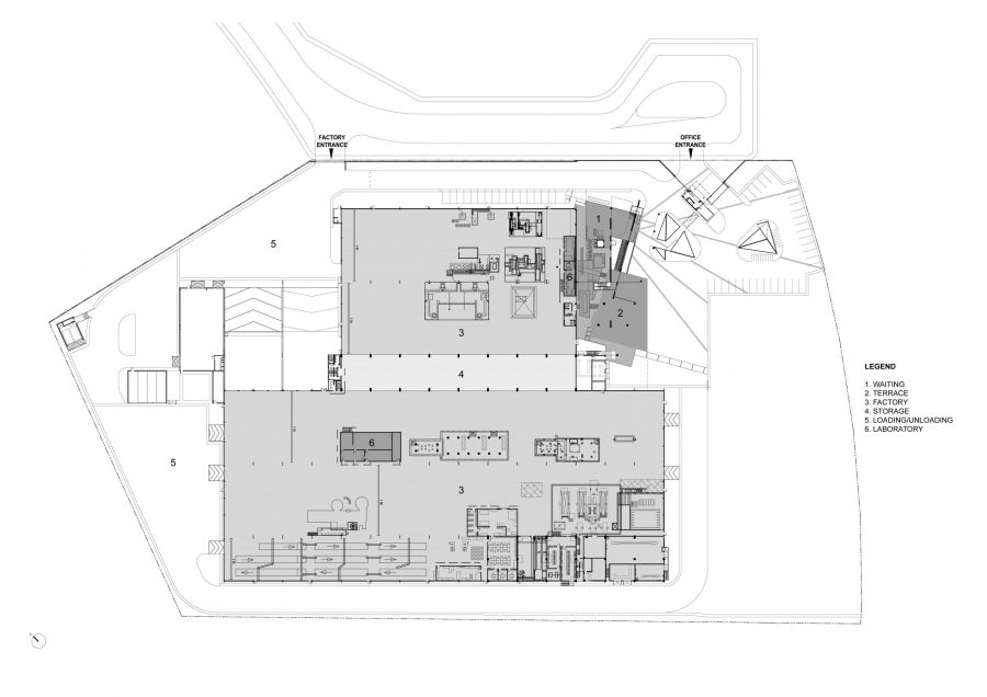
在Wieland厂房的设计中,我们将结构赤裸裸的展现在大众眼前。大胆的尝试创造“建筑灵魂”,像折纸一般的入口造型将屋顶结构延伸到地面,带来磅礴的气势与戏剧化的空间感受。

“内”与“外”空间的融合,办公一层入口利用架空的景观空间替代门厅,弱化室内外空间的界限,让人们不自觉间进入办公室。

低碳设计元素混合平滑的混凝土与粗狂的结构网以原始的状态裸露在人们的视线之中,给人以强烈的反差感。纯净的混凝土墙面与绿化结合加强了入口景观的禅宗意境。

原始互动空间拓展人与人的交流平台,景观中庭作为室内外过渡空间,成为两个办公区域的联系纽带。

车间屋顶使用特殊设计的天窗,可以得到充分的光照的同时,又能隔绝热能与雨水,保持室内干净清爽的空气。

表皮艺术是建筑时尚的外衣,经不起潮流的演变“原始结构之美才会随着时间的流逝而越显珍贵”

 

设计公司   |   新加坡AVID建筑设计集团

 

Date:
Category:
Tags: